
结合国内市场目前火车装车慢的难题与现状;我公司吸取国外发达国家先进的装车系统技术并自主研发制造,以满足国内市场的火车装车的需求。
优点 Advantages:
节约了装卸时间 Saving handling time
实现了装车现代化作业 Achieves the modernization of the loading
降低了装车成本 Saves the loading costs
实现对装卸员工的人文关怀 Realizing the humane care to handling staffs
降低装车过程中的安全事故 Reducing incidents in loading process


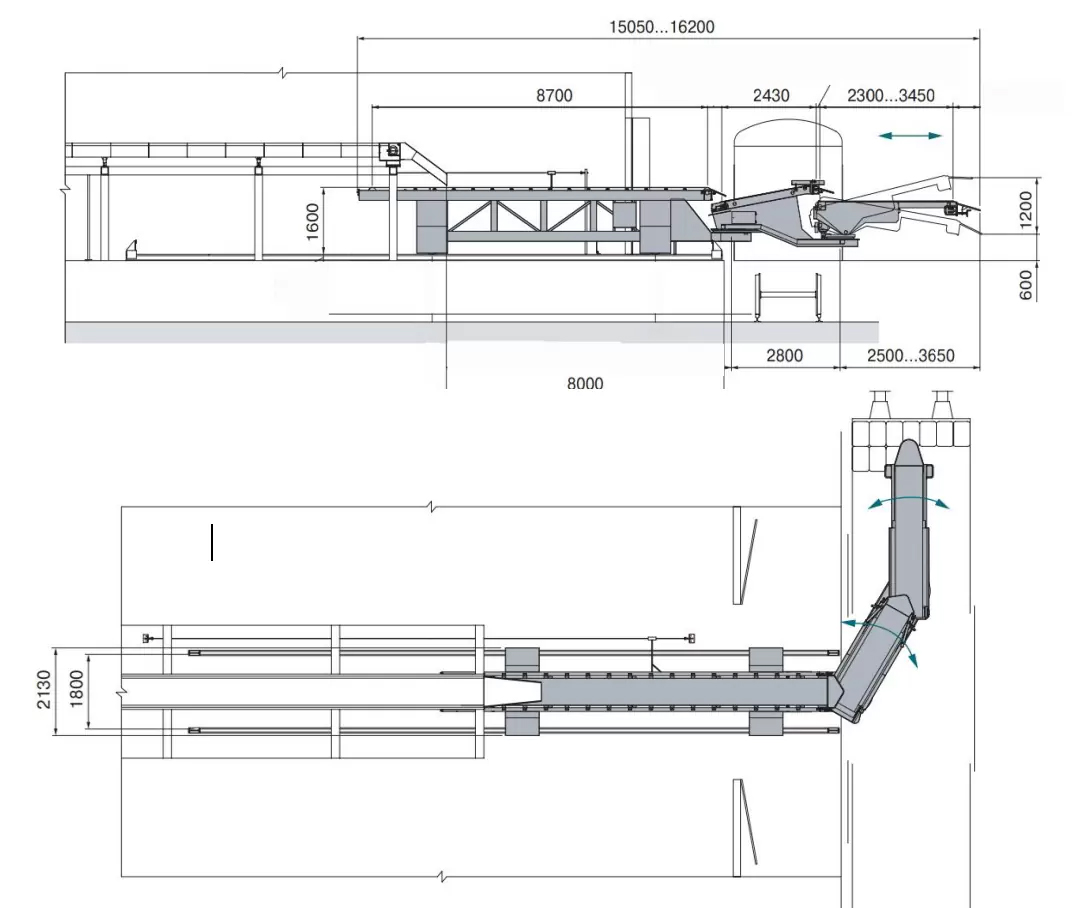
| 单位:mm | 火车装车机 | ||||||
| 载荷 | 效率 | 功率 | 带宽 | 移动速度 | 旋转角度 | 皮带速度 | 倾斜速度 |
| ≤60kg/m | 2400 bags/h | 16.2-19.6kw | 650mm | 0.2m/s | 180°(±90°) | 0-0.6m/s | 2degree/s |
| 倾斜角度 | 总长度 | 总宽度 | 入货高度 | 电机 | 电压 | 颜色 | 使用年限 |
| +20°/-15° | 15050-16200mm | 2130mm | 1600mm | SEW | 380V | RAL5015 | 10years |
说明:(1)以上技术规格技术参数为我司标准火车装车机相关数据,仅供用户参考。因用户场地有差异,装车机部分尺寸需结合用户现场情况而定。
(2)最终以用户场地的平面图纸尺寸为设计装车机的依据





